横山ビル

33万円

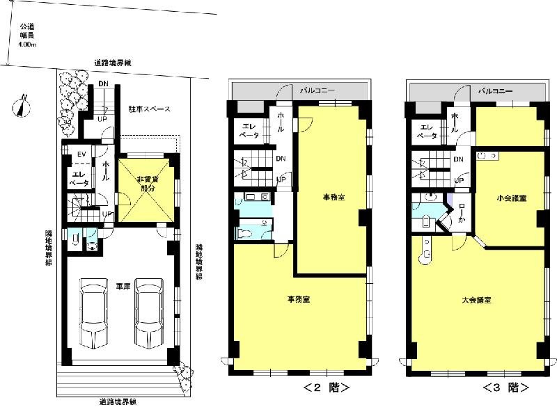
*3階ワンフロアー
*医院に最適(*第一種中高層住居専用地域(医院・福祉関係))
*駐車場2台分使用可(北側と南側)
*北面、南面道路に接道し
 両側から出入り可能
*エレベーター
契約期間に応じた敷引あり。

兵庫県神戸市東灘区御影1丁目

阪急神戸本線「御影」駅徒歩6分

阪神本線「御影」駅徒歩10分

神戸新交通六甲アイランド線「住吉」駅徒歩15分

賃料 / 坪単価
33万円 / 1.38万円
敷金
-
間取り
-
向き
-
所在地
兵庫県神戸市東灘区御影1丁目
交通

阪急神戸本線御影」駅 徒歩6分

阪神本線御影」駅 徒歩10分

神戸新交通六甲アイランド線住吉」駅 徒歩15分

管理 / 共益費
22,000円
礼金
33万円
建物面積
79.23㎡
築年月
1993年3月(築32年)

おすすめポイント

  • エレベーター

  • 照明器具付き

  • オートロック

  • 駐車場あり

物件周辺地図

基本情報

保証金
300万円
敷引 / 償却
- / -
その他初期費用
-
その他月額費用
-
間取り / 詳細
-
向き
-
建物面積
79.23㎡
バルコニー
(テラス)面積
-
建ぺい率
-
容積率
-
接道状況
-
所在階 / 階建て
3階 / 5階建
築年月
1993年3月(築32年)
種別
店舗事務所
契約期間
-
用途地域
第一種中高層住居専用
建物構造
鉄筋コンクリート / 3階
保証会社 / 料金
必加入 / 日本セーフティー
契約時に月額賃料、共益費等の合計の100%
必須 (日本セーフティー) 契約時に月額賃料、共益費等の合計の100%
その他
法令上の制限
-
駐車場
空有 0円 2台分(北側)
現況
空家
入居可能時期
相談
取引条件の
有効期限
2026年01月23日

設備条件

設備条件
  • エレベーター / 照明器具付き / エアコン / オートロック

その他

賃貸区分
一般
総戸数
-
更新料
-
更新事務手数料
-
造作譲渡金
-
保険会社 / 料金
無  / -
取引態様
媒介
物件番号
88951469
管理コード
1127280218350000009856
情報更新日
2026年01月09日
次回更新予定日
2026年01月23日
備考
「横山ビル」のここがイチオシ。オートロックと玄関の鍵で二重で守られているので安全性に優れております。メンテナンスも簡単なエアコン付きの物件で、温度管理が楽々。賃料は33万円です。駐車場に空きがあるので車を駐車するスペースにお困りの方にもお薦めです。アクセスの良い徒歩6分の物件です(^^)

更新日:2026年01月09日 次回更新予定日:2026年01月23日
表示物件は、掲載後成約済・売却中止あるいは価格変更となる場合がありますのでご了承ください。
価格はすべて代金総額を表示しております。
また間取り図・地図等は概略です。掲載情報と現況が異なる場合、現況を優先させていただきます。

株式会社日住サービス 住吉店

営業時間
10:00~18:00
定休日
火曜日 水曜日
住所
〒658-0051
兵庫県神戸市東灘区住吉本町1丁目7-2 石橋ビル1F
久本 容子

私が担当いたします

久本 容子

プロフィール

078-811-4641

お問い合わせ先

株式会社日住サービス 住吉店

営業時間
10:00~18:00
定休日
火曜日 水曜日
住所
〒658-0051
兵庫県神戸市東灘区住吉本町1丁目7-2 石橋ビル1F
担当者
久本 容子 プロフィール

078-811-4641