神戸市灘区寺口町戸建

2,880万円

兵庫県神戸市灘区寺口町

阪急神戸本線「六甲」駅徒歩12分

東海道本線「六甲道」駅徒歩18分

阪急神戸本線「御影」駅徒歩19分

価格
2,880万円
間取り/建物面積
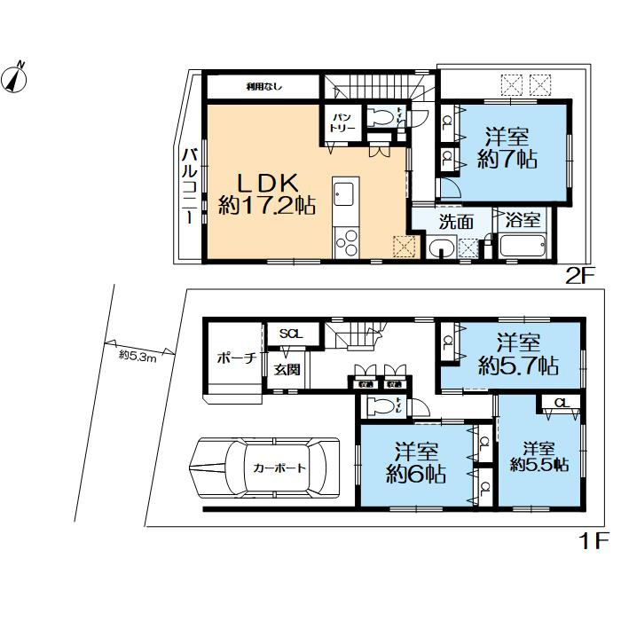
2LDK/89.10㎡
所在地
兵庫県神戸市灘区寺口町
築年
1996年10月(築29年)
駐車
交通

阪急神戸本線六甲」駅 徒歩12分

東海道本線六甲道」駅 徒歩18分

阪急神戸本線御影」駅 徒歩19分

神戸市灘区寺口町戸建の基本情報

物件名
神戸市灘区寺口町戸建
価格
2,880万円
建物面積
89.10㎡
土地面積
17.5坪(57.86㎡)
築年月
1996年10月(築29年)
総戸数
-
所在地
兵庫県神戸市灘区寺口町
交通

阪急神戸本線六甲」駅 徒歩12分

東海道本線六甲道」駅 徒歩18分

阪急神戸本線御影」駅 徒歩19分

神戸市灘区寺口町戸建の詳細情報

設備条件
  • 閑静な住宅地
  • 眺望良好
  • 女性向け
  • 新婚さん向け
  • ファミリー向け
  • バルコニー
  • 都市ガス
  • 公営水道
  • 公共下水
  • コンロ2口以上
  • システムキッチン
  • コンロ3口
  • バス・トイレ別
  • 収納豊富
設備(その他)
    -
駐車場/月額
有/0円
土地権利
所有権
国土法届出
不要
用途地域
第一種低層住居専用
取引態様
媒介
現況
空家
引渡し
相談
備考
中古戸建てながら、室内はとてもきれいです。駅徒歩12分の場所にある物件です。多種多様な不動産情報を有する当社でなら、お客様のこだわり条件に合わせて物件を探すことが可能です。まずはご希望条件をお申し付けください。

神戸市灘区寺口町戸建のコメント(おすすめポイント)

こちらの物件は最寄りのスーパー「生活協同組合コープこうべ コープミニ高羽」が289m以内にあります。駅まで歩いて行くことのできる、駅徒歩12分の物件です。こちらの中古戸建て物件は、子育ての環境としてもうってつけです。当社でなら、お客様の希望とする物件を見つけることができます。希望条件と併せて、お電話またはメールからお問い合わせくださいませ。

神戸市灘区寺口町戸建で募集中の物件

  1. 2LDK+1S(納戸) (89.10㎡)

    2,880万円

周辺施設

  • 神戸市立高羽小学校の画像

    小学校

    神戸市立高羽小学校

    340m(5分)

近隣の物件

  1. 神戸市灘区青谷町3丁目

    3LDK (134.05㎡)

    6,980万円

  2. 神戸市灘区篠原北町4丁目

    4LDK (120.61㎡)

    6,780万円

  3. 神戸市灘区高羽町1丁目

    4DK (96.70㎡)

    4,280万円

  4. 神戸市灘区篠原本町1丁目

    4LDK (109.35㎡)

    7,780万円

お問い合わせ先

株式会社日住サービス 住吉店

営業時間
10:00~18:00
定休日
火曜日 水曜日
住所
〒658-0051
兵庫県神戸市東灘区住吉本町1丁目7-2 石橋ビル1F

078-811-4641