南五葉3丁目新築(建築中)戸建B号地

3,690万円

兵庫県神戸市北区南五葉3丁目

神鉄粟生線「西鈴蘭台」駅徒歩11分

神鉄粟生線「鈴蘭台西口」駅徒歩13分

神鉄有馬線「鈴蘭台」駅徒歩16分

価格
3,690万円
間取り/建物面積
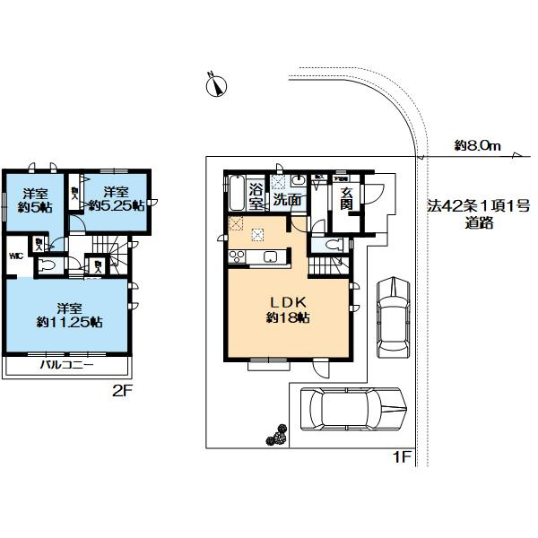
3LDK/91.90㎡
所在地
兵庫県神戸市北区南五葉3丁目
築年
2026年5月(予定)
駐車
有(2台)
交通

神鉄粟生線西鈴蘭台」駅 徒歩11分

神鉄粟生線鈴蘭台西口」駅 徒歩13分

神鉄有馬線鈴蘭台」駅 徒歩16分

南五葉3丁目新築(建築中)戸建B号地の基本情報

物件名
南五葉3丁目新築(建築中)戸建B号地
価格
3,690万円
建物面積
91.90㎡
土地面積
34.78坪(115.00㎡)
築年月
2026年5月(予定)
総戸数
-
所在地
兵庫県神戸市北区南五葉3丁目
交通

神鉄粟生線西鈴蘭台」駅 徒歩11分

神鉄粟生線鈴蘭台西口」駅 徒歩13分

神鉄有馬線鈴蘭台」駅 徒歩16分

南五葉3丁目新築(建築中)戸建B号地の詳細情報

設備条件
  • 閑静な住宅地
  • 現地見学会
  • 室内洗濯機置場
  • バルコニー
  • 都市ガス
  • 公営水道
  • 公共下水
  • 電気有
  • 駐車2台可
  • ガスコンロ
  • コンロ2口以上
  • システムキッチン
  • コンロ3口
  • バス・トイレ別
  • 追焚機能浴室
  • 浴室乾燥機
  • 温水洗浄便座
  • 洗面台
  • トイレ2ヶ所
  • 浴室1坪以上
  • 独立洗面台
  • 床下収納
  • ウォークインクロゼット
  • TVモニタ付インターホン
  • 複層ガラス
設備(その他)
    -
駐車場/月額
有(2台)/0円
土地権利
所有権
国土法届出
不要
用途地域
第一種低層住居専用
取引態様
媒介
現況
未完成
引渡し
相談

南五葉3丁目新築(建築中)戸建B号地で募集中の物件

  1. 3LDK (91.90㎡)

    3,690万円

周辺施設

  • 鈴蘭台西口駅の画像

    鈴蘭台西口駅

    951m(12分)

  • 鈴蘭台駅の画像

    鈴蘭台駅

    1261m(16分)

  • 神戸鈴蘭台郵便局の画像

    郵便局

    神戸鈴蘭台郵便局

    1359m(17分)

  • はすいけクリニックの画像

    クリニック

    はすいけクリニック

    1379m(18分)

近隣の物件

  1. 神戸市北区君影町6丁目

    3LDK (84.24㎡)

    2,349万円

  2. 神戸市北区唐櫃台2丁目

    4LDK (135.07㎡)

    1,580万円

  3. 神戸市北区京地3丁目

    4LDK (106.69㎡)

    2,399万円

  4. 神戸市北区藤原台中町8丁目

    3LDK (129.22㎡)

    3,490万円

お問い合わせ先

株式会社日住サービス 北神店

営業時間
10:00~18:00
定休日
火曜日 水曜日
住所
〒651-1302
兵庫県神戸市北区藤原台中町1丁目2-1 北神中央ビル1F

078-987-3931