• 新築一戸建

北六甲台4丁目新築(建築中)一戸建 1号地

■北六甲台4丁目新築一戸建(建築中)■建物面積約98㎡(4LDK)■並列駐車スペース2台可能■フラット35S金利Aプラン(省エネルギー性)利用可能■地盤調査済■「まもりすまい保険(10年保証)」加入予定■Low-e複層ガラス(一部除く)■電気施錠タグキー搭載の玄関扉■1坪浴室で浴室乾燥暖房乾燥機付き■カラーモニター付インターフォン■洗面台三面鏡シャワー水栓■24時間換気システム

兵庫県西宮市北六甲台4丁目

福知山線「西宮名塩」駅バス16分北六甲台鍋倉公園前停歩4分

神鉄三田線「岡場」駅バス29分北六甲台鍋倉公園前停歩4分

阪急神戸本線「夙川」駅バス44分北六甲台鍋倉公園停歩4分

価格
3,090万円
建物面積
98.36㎡
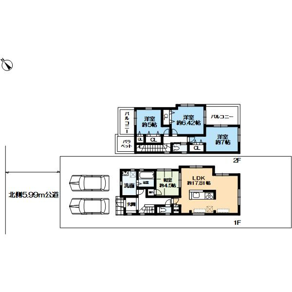
間取り
4LDK
築年月
2026年2月(予定)
土地面積
187.86㎡
所在地
兵庫県西宮市北六甲台4丁目
交通

福知山線西宮名塩」駅 バス16分 「北六甲台鍋倉公園前」 停歩4分

神鉄三田線岡場」駅 バス29分 「北六甲台鍋倉公園前」 停歩4分

阪急神戸本線夙川」駅 バス44分 「北六甲台鍋倉公園」 停歩4分

おすすめポイント

  • 眺望良好

  • 室内洗濯機置場

  • フローリング

  • 駐車2台可

  • システムキッチン

  • バス・トイレ別

  • 追焚機能浴室

  • 浴室乾燥機

物件周辺地図

周辺施設

  • 幸幼稚園の画像

    幼稚園

    幸幼稚園

    698m(9分)

  • 西宮市立北六甲台小学校の画像

    小学校

    西宮市立北六甲台小学校

    748m(10分)

  • ドラッグストアライフォート西宮山口店の画像

    ドラッグストア

    ドラッグストアライフォート西宮山口店

    949m(12分)

  • ハローズ 西宮山口店の画像

    スーパー

    ハローズ 西宮山口店

    1072m(14分)

  • セブンイレブン 西宮下山口5丁目店の画像

    コンビニエンスストア

    セブンイレブン 西宮下山口5丁目店

    1146m(15分)

  • 高田上谷病院の画像

    外科

    高田上谷病院

    1320m(17分)

  • 西宮市立山口中学校の画像

    中学校

    西宮市立山口中学校

    1361m(18分)

  • 西宮市立山口幼稚園の画像

    幼稚園

    西宮市立山口幼稚園

    1696m(22分)

  • 西宮市役所 山口支所の画像

    市役所・区役所

    西宮市役所 山口支所

    1712m(22分)

基本情報

販売戸数
-
総戸数
-
間取り / 詳細
4LDK
和室 4.5帖 1室/洋室 5.0帖 1室/洋室 6.4帖 1室/洋室 7.0帖 1室/LDK 17.8帖 1室
向き
建物面積(坪数)
98.36㎡(29.75坪)
土地面積(坪数)
187.86㎡(56.82坪)
建ぺい率 /
容積率
50%/100%
築年月
2026年2月(予定)
駐車場 /
月額料金
有(2台) 0円
土地権利
所有権
土地
(敷金 / 保証金)
- / -
傾斜地部分面積
-
路地状敷地
-
私道負担面積
-
セットバック
高圧線下面積
-
施工会社
ファースト住建(株)
用途地域
第一種低層住居専用
地目 / 地勢
宅地 / 平坦
接道状況
一方(北 公道 5.9m 間口 7.0m)
国土法届出要否
不要
都市計画
市街化区域
総区画数 /
販売区画数
-/-
現況
未完成
その他
法令上の制限
景観法/宅地造成及び特定盛土等規制法
建物構造
木造 / 2階建
取引態様
媒介
引渡し
2026年3月上旬
取引条件の
有効期限
2026年03月16日

設備条件

設備条件
  • 眺望良好 / 現地見学会 / 室内洗濯機置場 / フローリング / バルコニー / 都市ガス / 公営水道 / 公共下水 / 24時間換気システム / 電気有 / 2面バルコニー / 駐車2台可 / ガスコンロ / コンロ2口以上 / システムキッチン / コンロ3口 / バス・トイレ別 / 追焚機能浴室 / 浴室乾燥機 / 温水洗浄便座 / 洗面台 / 洗髪洗面化粧台 / TVモニタ付インターホン / 複層ガラス
設備(その他)
    -

その他

物件番号
100216615
管理コード
-
建築確認番号
第トラスト25-1417号
情報更新日
2026年03月02日
次回更新予定日
2026年03月16日
備考
■2026年2月完成予定
■土地面積約187㎡(約56坪)
■建物面積約98㎡(約29坪)
■エフフォースター基準
■地盤調査済
■まもりすまい保険(10年保証)
■カースペース2台分
■LDKは約17.8帖
■Low-e複層ガラス(一部除く)
■1坪サイズ追い焚き付浴室
■システムキッチン
■24時間換気システム
■浴室暖房乾燥機
■電気施錠タグキー搭載の玄関扉
■床下収納付き

本物件は完成前迄は別物件での参考モデルルーム内覧予約制です。

物件担当【大久保】迄 
大久保直通携帯080-8548-2569
※火曜日・水曜日は定休日

更新日:2026年03月02日 次回更新予定日:2026年03月16日
表示物件は、掲載後成約済・売却中止あるいは価格変更となる場合がありますのでご了承ください。
価格はすべて代金総額を表示しております。
また間取り図・地図等は概略です。掲載情報と現況が異なる場合、現況を優先させていただきます。

株式会社日住サービス 北神店

営業時間
10:00~18:00
定休日
火曜日 水曜日
住所
〒651-1302
兵庫県神戸市北区藤原台中町1丁目2-1 北神中央ビル1F
大久保 慎太郎

私が担当いたします

大久保 慎太郎

プロフィール

078-987-3931

お問い合わせ先

株式会社日住サービス 北神店

営業時間
10:00~18:00
定休日
火曜日 水曜日
住所
〒651-1302
兵庫県神戸市北区藤原台中町1丁目2-1 北神中央ビル1F
担当者
大久保 慎太郎 プロフィール

078-987-3931

購入時の住宅ローンとリフォームローンを同時に申し込みいただくとお得です